Сдам коммерческую недвижимость в Москве

Коммерческая недвижимость в Москве
Цена 260 000 р.
Вид недвижимости Нежилые свободного назначения
Адрес Щёлковское шоссе, 18к1
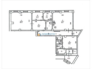
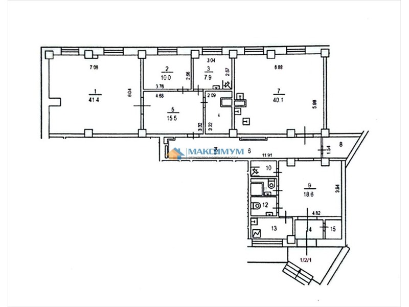
Площадь помещения 187,5 м2
Id 2236. Первая линия!!! Отдельный вход с улицы!!! Парковка!!!Рядом жилой массив Сдам в аренду помещение на 1 этаже с отдельным входом, жилого девятнадцатиэтажного дома! Расположенного по адресу: Москва, Щелковское шоссе, дом 18 корпус 1 Отличная транспортная доступность: 13 минут транспортом до метро "Черкизовская" или 13 минут транспортом до метро "Щелковская". Выезд на хорду в 5 минутах, и 15 минутах до ТТК, а также до МКАД 15 минут транспортом! Рядом с помещением парковочные места. Характеристики помещений: Площадь 187,5 кв.м. Есть окна и три мокрые точки. Мощность в помещение 120 кВт - Возможность размещения информационной вывески на фасаде здания без взимания дополнительной платы Срок аренды от 11 месяцев, и более, с обсуждением индивидуальных условий. - Высокий пешеходный и автомобильный трафик вблизи объекта - Полное соответствие для использования ПСН - Наличие подключения всех инженерных коммуникаций - Удобные пути подъездов автомобилей, общественного транспорта и подхода пешеходов - Хорошая видимость со стороны проезжей части "Щелковского шоссе" Внутри здания есть: интернет. Вся инфраструктура в пешей доступности: Спорткомплекс с бассейном, сетевые магазины, детские сады и школы, Возможное назначение: Офис Ещё: салон красоты, медицинский центр, стоматология, spa салон, детский клуб, детский центр, зубная поликлиника, интернет-магазин, кофейня, косметология, нотариальная контора, пункт выдачи, и многое другое.
Объявление № 23973302
Дата подачи:
21 марта 2026 г. 3:11
Дата обновления:
13 апреля 2026 г. 4:00
Просмотров 10 Хотите продать быстрее?

Продавец
Агентство недвижимости:
Владимир Попов
email: v.popov@msk-maximum.ru
Показать номер телефона
Пожаловаться
Комментарии:
Добавить